Façana exterior moderna Casa Ullastrell 2015 amb grans finestrals il·luminats.

Obra nova |

Residencial

Direcció d’Execució Residencial a Ullastrell

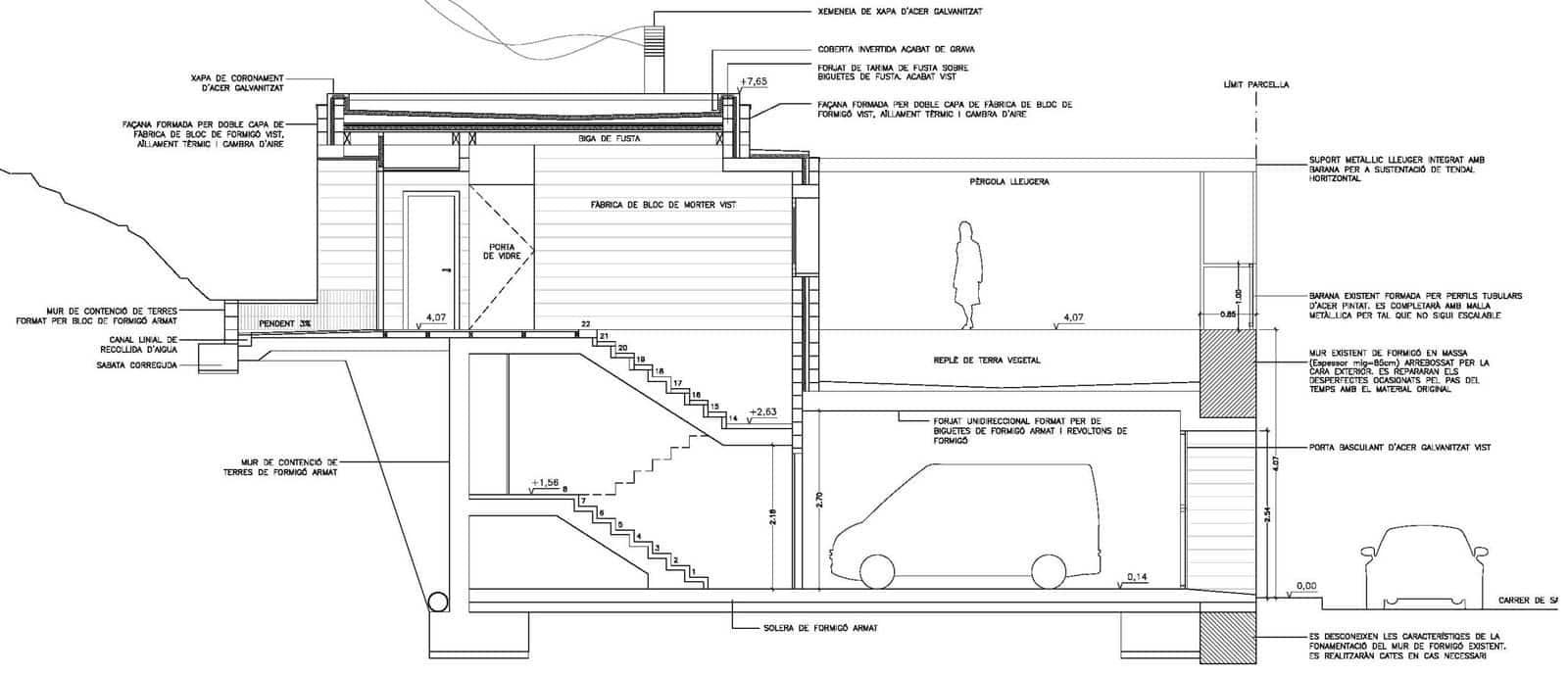
Casa unifamiliar aïllada amb pati situada al municipi d’Ullastrell, en un solar amb un desnivell considerable respecte al carrer. El projecte consisteix en la construcció d’un habitatge en planta baixa amb garatge semi soterrat, resolent la implantació de l’edifici en un terreny elevat aproximadament 5 metres.

L’habitatge es desenvolupa amb una clara aposta per l’eficiència energètica i el confort interior, mitjançant una façana ventilada amb aïllament per l’exterior que elimina ponts tèrmics, una coberta invertida i instal·lacions amb aerotèrmia, plaques solars i terra radiant.

Un dels principals reptes del projecte va ser adaptar la construcció al desnivell del terreny, resolent la connexió entre el garatge i l’habitatge mitjançant una escala integrada. També va destacar la voluntat de deixar elements estructurals vistos, tant en sostres com en murs de càrrega, exigint una execució acurada.

A nivell econòmic, la façana ventilada va requerir un treball d’optimització per aconseguir un equilibri entre cost, prestacions energètiques i qualitat arquitectònica.

El resultat és una casa amb un disseny singular, eficient energèticament i amb un alt nivell de confort, executada amb un control rigorós de qualitat i costos.

Dades del Projecte

Ubicació

Ullastrell

Any Finalització

2015

Superficie

165 m²

Serveis Realitzats

Control de qualitatDirecció d’Execució d’Obra

Busques aquest nivell de control tècnic?

Garantim la viabilitat tècnica i econòmica de la teva propera promoció.

Demanar Valoració d’Honoraris